| ID # | RLS20079751 |
| 房資料 | 建築名稱: One Manhattan Square 二房一廳二浴, 1123 ft2 室內尺, 室內104m2平方米, 建築有815公寓, 建築有80層樓 上市時間: 1天 |
| 建造年份 | 2018年 |
| 管理費 | $1千7 ($1,739) |
| 地稅 | $2百6 ($264) |
| 地鐵站 | 4 分鐘到 F |
| 10 分鐘到 B, D | |
![]() |
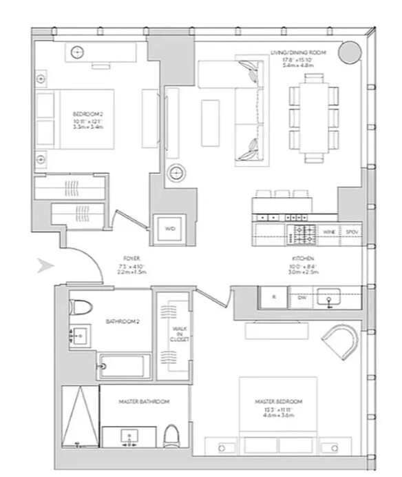
坐落於46樓的One Manhattan Square的46K單元是一個稀有的高端角落格局,自大樓啟用以來一直保持著高需求。
從進門的那一刻起,您將迎接眼前令人驚嘆的曼哈頓全景。從世貿中心到中城,從哈德遜河到東河。醒來時欣賞帝國大廈上空的日出,傍晚在客廳的舒適中放鬆,觀賞小船在威廉斯堡橋下平滑滑行。
這個家被落地窗包圍,沐浴在自然光中,增強了實木地板和整體乾淨、現代的設計。開放式的客廳和餐廳區域提供了優雅和靈活性,非常適合招待客人或在城市上方安靜的夜晚。
窗戶廚房既實用又美觀,配備全套高端Miele廚具,還有充足的櫥櫃、光滑的檯面,以及與生活空間無縫連接的早餐吧。
分隔式臥室布局提供了隱私和靈活性。主套房是一個寧靜的避風港,擁有寬敞的衣櫃和配備輻射地暖的水療品質的套房浴室,還有馬賽克瓷磚、不規則木櫃和拋光的Dornbracht五金配件。
第二間臥室經過精心增強,配備內建的墨菲床,使空間能夠輕鬆變換為客房、家庭辦公室或額外的生活區域……同時擁有一面衣櫃牆,提供充足的空間和儲物空間。第二間完整浴室設有淋浴/浴缸組合、引人注目的玻璃瓷磚裝飾和優秀的儲物空間。
其他亮點包括:
- 全部為加州衣櫥
- 全部為電動窗簾
- 臥室的軌道照明
- 可包含家具和壁掛電視
- Bosch洗衣機/烘乾機
居住在One Manhattan Square猶如置身於五星級度假村,擁有超過100,000平方英尺的室內外設施。享受完整的水療體驗,設有土耳其浴、冷水浸池、75英尺的鹽水游泳池、熱水浴池、桑拿和治療室。隨時保持活力,擁有完整的籃球場、保齡球館、壁球場、高爾夫模擬器,以及配備專用健身室的先進健身中心,提供纖細、瑜伽、普拉提等課程。
您可以在私人電影院、酒窖酒吧休息室、品酒室、雪茄室、烹飪休息室和合作空間放鬆或娛樂。戶外設施包括超過一英畝的美化花園、火爐、燒烤區、推桿綠地、遊樂場、樹屋、茶亭,甚至還有觀星天文台。
配備白手套服務、全職門衛、住家經理、現場停車場、寵物水療中心,以及布魯克林Fare雜貨店的便利,這真是一種自成體系的奢華生活方式。
位於下東區,您距離埃塞克斯市場、17號碼頭、南街海濱、東河濱步道及市中心的一些最佳餐飲和夜生活僅幾步之遙。輕鬆接駁多條地鐵線及通往富爾頓街的私人班車,便捷與專屬相遇。
Perched on the 46th floor, Residence 46K at One Manhattan Square is a rare premier corner layout that has remained in high demand since the building's inception.
From the moment you enter, you're met with breathtaking, cinematic views stretching across Manhattan. From the World Trade Center to Midtown, and from the Hudson River to the East River. Wake up to sunrises over the Empire State Building and unwind in the evening as boats glide beneath the Williamsburg Bridge-all from the comfort of your living room.
Wrapped in floor-to-ceiling glass, the home is bathed in natural light, enhancing the hardwood floors and the clean, modern design throughout. The open-concept living and dining area offers both elegance and flexibility, ideal for entertaining or quiet nights above the city.
The windowed chef's kitchen is as functional as it is beautiful, featuring a full suite of premium Miele appliances, along with generous cabinetry, sleek countertops, and a breakfast bar that seamlessly connects to the living space.
The split-bedroom layout offers both privacy and versatility. The primary suite is a serene retreat with a spacious closet and a spa-quality en suite bath complete with radiant heated floors, mosaic tilework, bespoke wood cabinetry, and polished Dornbracht fixtures.
The second bedroom has been thoughtfully enhanced with a built-in Murphy bed, allowing the space to effortlessly transform between a guest room, home office, or additional living area...while still offering ample room and storage with its wall of closets. A second full bathroom features a shower/tub combination, striking glass tile finishes, and excellent storage.
Additional highlights include:
- California Closets Throughout
- Motorized Window Shades Throughout
- Track Lighting in the Bedrooms
- Furniture and wall mounted TV's can be included
- Bosch in-unit washer/dryer
Living at One Manhattan Square is akin to residing in a five-star resort, with over 100,000 square feet of indoor and outdoor amenities. Indulge in a full spa experience featuring a hammam, cold plunge, 75-foot saltwater pool, hot tub, sauna, and treatment rooms. Stay active with a full basketball court, bowling alley, squash court, golf simulator, and state-of-the-art fitness center with dedicated studios for spin, yoga, Pilates, and more.
Entertain or unwind with access to a private movie theater, cellar bar and lounge, wine tasting room, cigar room, culinary lounge, and co-working spaces. Outdoors, enjoy over an acre of landscaped gardens, fire pits, BBQ areas, a putting green, playground, treehouse, tea pavilion, and even a stargazing observatory.
Complete with white-glove service, a full-time doorman, live-in resident manager, on-site garage, pet spa, and the convenience of Brooklyn Fare grocery store, this is truly a self-contained luxury lifestyle.
Perfectly positioned on the Lower East Side, you are moments from Essex Market, Pier 17, South Street Seaport, the East River Esplanade, and some of downtown's best dining and nightlife. With easy access to multiple subway lines and a private shuttle to Fulton Street, convenience meets exclusivity.
This information is not verified for authenticity or accuracy and is not guaranteed and may not reflect all real estate activity in the market. © 2026 The Real Estate Board of New York, Inc., All rights reserved.







