| MLS # | 947911 |
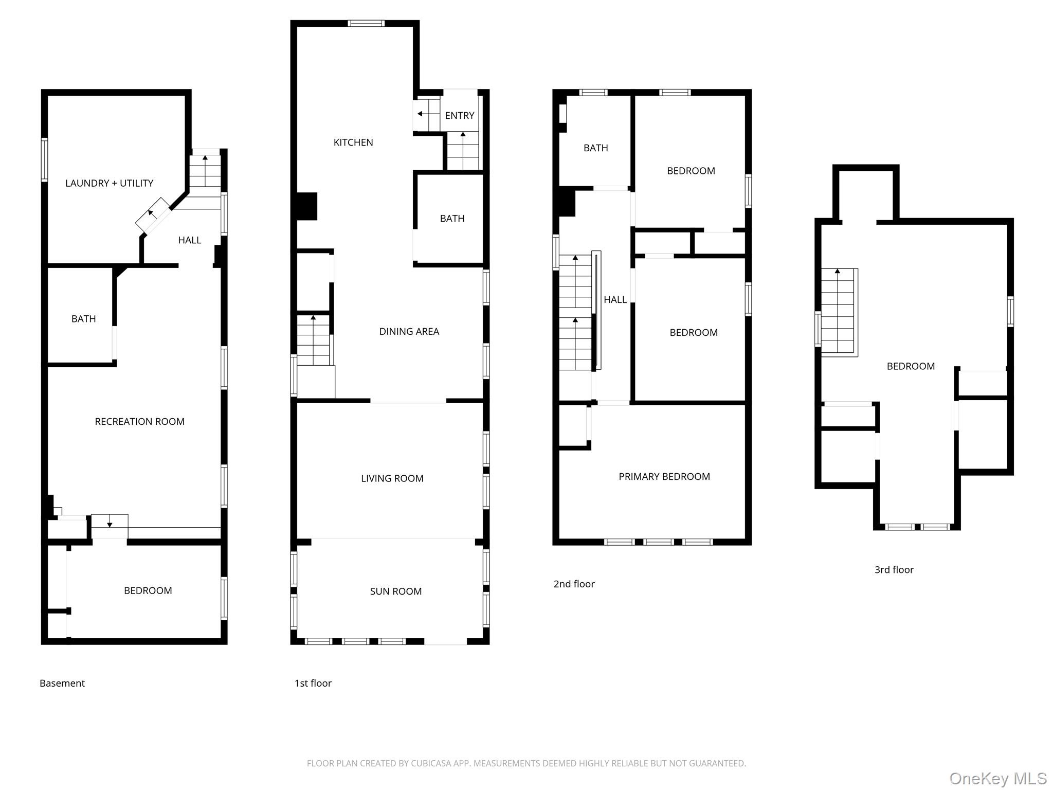
| 房資料 | 4房, 3浴, 車庫, 空調, 地0.06英亩, 1700 ft2 室內尺, 室內158m2平方米 上市時間: 2天 |
| 建造年份 | 1920年 |
| 地稅 | $5千8 ($5,872) |
| 燃料 | 天然氣 Gas |
| 暖氣系統 | 熱水 Hot water |
| 空調 | 壁掛式空調 Wall Unit AC |
| 地下室 | 全地下室 Full basement |
| 車庫類型 | 獨立 Detached |
| 公共汽車 | 1 分鐘到 Q08 |
| 3 分鐘到 Q112, Q41 | |
| 6 分鐘到 Q09, Q24 | |
| 7 分鐘到 X64 | |
| 10 分鐘到 Q10, QM18 | |
| 火車站 | 0.7 英里到 Jamaica 火車站 |
| 1.4 英里到 Kew Gardens 火車站 | |
![]() |
全新翻修的獨立單家庭住宅,位於南里士滿山的黃金地段!提供了罕見的寬敞空間、奢華的現代升級和極受歡迎的停車位組合!
這棟三層樓的住宅擁有4間臥房和3間完整浴室。於2025年翻修,房屋展示了硬木地板、內嵌燈光以及明亮的開放式客廳、餐廳和廚房區域!更新過的廚房配備了石英檯面、不銹鋼電器和充足的櫥櫃空間,專為日常生活設計,非常適合娛樂!
全裝修的地下室設有獨立的外部入口,提供了寶貴的額外生活空間,靈活運用於擴展居住、娛樂或接待客人。還有一個獨立的鍋爐房,配有洗衣機和乾衣機的設置!
主要更新包括全新的屋頂、更新的電力系統,以及保養良好的鍋爐和熱水器,讓您高枕無憂,真正可立即入住的狀態!
亮點之一是寬敞的私人車道和獨立車庫,這在皇后區是一個罕見且極受歡迎的資產,因為停車位非常有限。方便的位置靠近交通、商店、學校和社區設施。
在南里士滿山,像這樣的機會難以得見。如此狀況、佈局和稀有停車特徵的住宅不會持久。千萬不要錯過這個看到您夢想家園的機會!
Fully RENOVATED, fully DETACHED single-family home in PRIME South Richmond Hill! Offering a rare combination of ample space, luxurious modern upgrades, and highly sought-after parking!
This tri-level home features 4 bedrooms and 3 full bathrooms. Renovated in 2025, the home showcases hardwood floors, recessed lighting, and a bright open-concept living, dining, and kitchen area! The updated kitchen is equipped with quartz countertops, stainless steel appliances, and ample cabinet space, designed for everyday living and great for entertaining!
A full finished basement with a separate outside entrance provides valuable additional living space and flexibility for extended use, recreation, or guests. Along with a separate boiler room with a washer & dryer setup!
Major updates include a new roof, updated electrical, and a well-maintained boiler and hot-water heater, offering peace of mind and true move-in ready condition!
One of the standout features is the wide private driveway and detached garage, a rare and highly desirable asset in Queens, where parking is extremely limited. Conveniently located near transportation, shopping, schools, and neighborhood amenities.
Opportunities like this are rarely available in South Richmond Hill. Homes in this condition, layout, and rare parking features do not last. Do NOT miss this opportunity to see your dream home!
This information is not verified for authenticity or accuracy and is not guaranteed and may not reflect all real estate activity in the market. Listing courtesy of Keller Williams Realty Greater © 2026







