| ID # | 971354 |
| 地稅 | $9千9 ($9,943) |
| 地下室 | 全地下室 Full basement |
![]() |
擁有紐堡歷史的一部分:前公園劇院
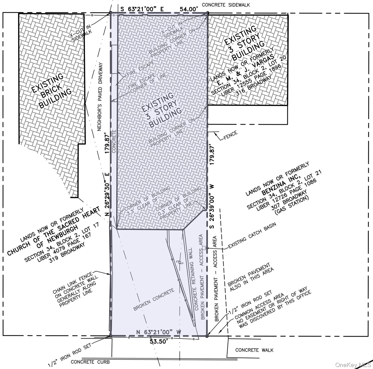
315 百老匯位於百老匯走廊的核心地帶,為有遠見的投資者或開發商提供了一個難得的機會。這座標誌性建築,曾是公園劇院,見證了紐堡豐富的建築歷史,現已準備好迎接下一個篇章。
售價為$399,999,這座超過11,000平方英尺的巨大建築,極其適合進行高密度的混合使用改建或作為住宅商業項目的基石。
工業級資產與基礎設施:
超過11,000平方英尺的多功能空間,包括一個全高的地下室,將您的可用面積加倍,以用於儲存、設施或創意下層建設。
配備功能性裝卸區,適合大型建築物流或未來的商業發貨/接收。
包括後方專用停車位,這在百老匯走廊是一項高度渴望的優質設施。
此位置可能符合各種政府和地方振興補助金的資格,為抵消開發成本提供了戰略路徑。
隨著紐堡濱水區的持續振興,以及自由街就在幾個街區外,這一地點提供了最大可見性和指數增長潛力。帶上您的建築師和您的願景,前往百老匯上剩下的最重要的殼之一。
Own a Piece of Newburgh History: The Former Park Theater
Strategically located in the heart of the Broadway corridor, 315 Broadway offers a rare opportunity for the visionary investor or developer. This iconic building, formerly the Park Theater, stands as a testament to Newburgh’s rich architectural history and is now ready for its next act.
Priced at $399,999, this massive 11,000+ sq. ft. structure is a prime candidate for a high-density mixed-use conversion or a cornerstone residential-commercial project.
Industrial-Grade Assets & Infrastructure:
Over 11,000 sq. ft. of versatile space, including a full-height basement that doubles your usable square footage for storage, utilities, or creative sub-level build-outs.
Equipped with a functional loading dock, making it ideal for large-scale construction logistics or future commercial shipping/receiving.
Includes dedicated parking in the rear, a premium and highly sought-after amenity in the Broadway corridor.
This location may qualify for various government and local revitalization grants, providing a strategic path to offset development costs.
With the ongoing revitalization of the Newburgh waterfront and Liberty Street just blocks away, this location offers maximum visibility and exponential growth potential. Bring your architect and your vision to one of the most significant shells remaining on Broadway.
This information is not verified for authenticity or accuracy and is not guaranteed and may not reflect all real estate activity in the market. Listing courtesy of eXp Realty © 2026







