| ID # | 970976 |
| 房資料 | 三房一廳一廚二浴, 洗碗機, 洗衣機, 烘乾機, 空調, 地0.05英亩, 1215 ft2 室內尺, 室內113m2平方米 上市時間: -7天 |
| 建造年份 | 1971年 |
| 燃料 | 天然氣 Gas |
| 空調 | 中央空調 Central Air |
![]() |
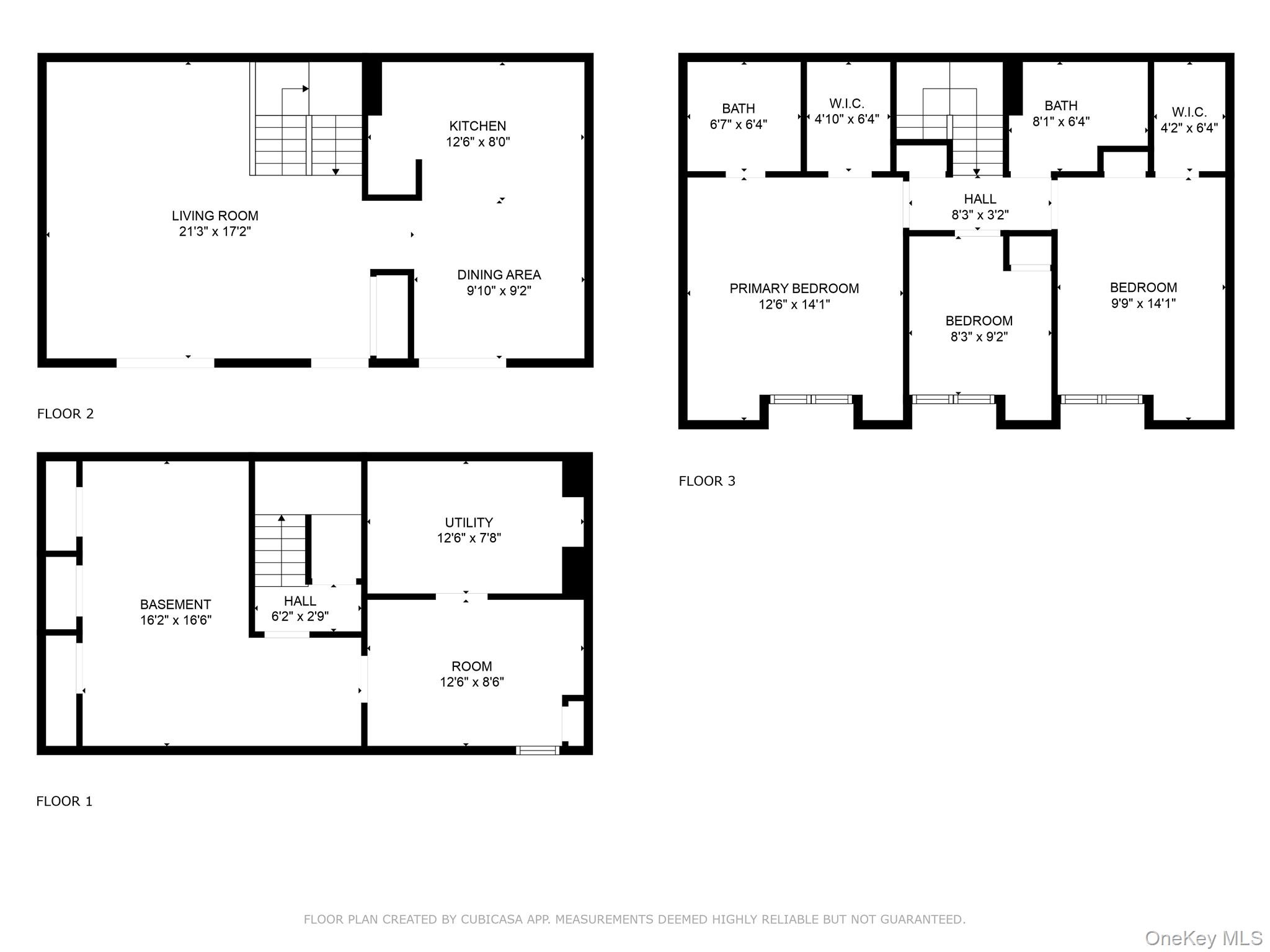
於2025年美麗翻新,此三層聯排別墅擁有三間臥室和兩間浴室,位於上層。主層設有配備花崗岩檯面的廚房、一個島式用餐區、不銹鋼電器、帶滑動門的相鄰餐區,以及帶有內嵌燈光的客廳。完工的地下室包括家庭房、辦公室和帶洗衣機的工具房。位於克拉克鎮學區內。該綜合設施提供戶外游泳池、遊樂場、網球場和籃球場,以及俱樂部會所。
除了首月租金和押金外,公寓綜合體還要求支付500美元的可退還押金。租戶必須在整個租約期間獲取租戶保險,至少包括20,000美元的財產損害保障和1,000,000美元的責任保障,並將房東/所有人及新市公寓管理委員會作為附加被保險人。必須在入住之前提供保險證書的副本。如需更多信息,請詢問租賃流程。
Beautifully renovated in 2025, this 3-level townhouse features 3 bedrooms and 2 bathrooms on the upper level. The main level offers a kitchen with granite countertops, an island seating area, stainless steel appliances, an adjacent dining area with sliding doors, and a living room with recessed lighting. The finished basement includes a family room, office, and utility room with laundry. Located in the Clarkstown school district. The complex offers an outdoor pool, playground, tennis and basketball courts, and a clubhouse.
In addition to the first month’s rent and security deposit, the Condominium Complex requires a $500 refundable security deposit. The tenant must obtain renter’s insurance for the entire lease term with a minimum of $20,000 property damage coverage and $1,000,000 liability coverage, naming the Landlord/Owner(s) and the Board of Managers of New City Condominiums I as additional insureds. A copy of the insurance certificate must be provided prior to taking possession. Please ask for rental procedures for more information.
This information is not verified for authenticity or accuracy and is not guaranteed and may not reflect all real estate activity in the market. Listing courtesy of Weichert Realtors © 2026







