| ID # | 956819 |
| 房資料 | 三房一廳一廚二浴, 洗碗機, 洗衣機, 烘乾機, 車庫, 地0.13英亩, 1774 ft2 室內尺, 室內165m2平方米 上市時間: 1天 |
| 建造年份 | 1924年 |
| 暖氣系統 | 熱水 Hot water |
| 地下室 | 全地下室 Full basement |
| 車庫類型 | 獨立 Detached |
![]() |
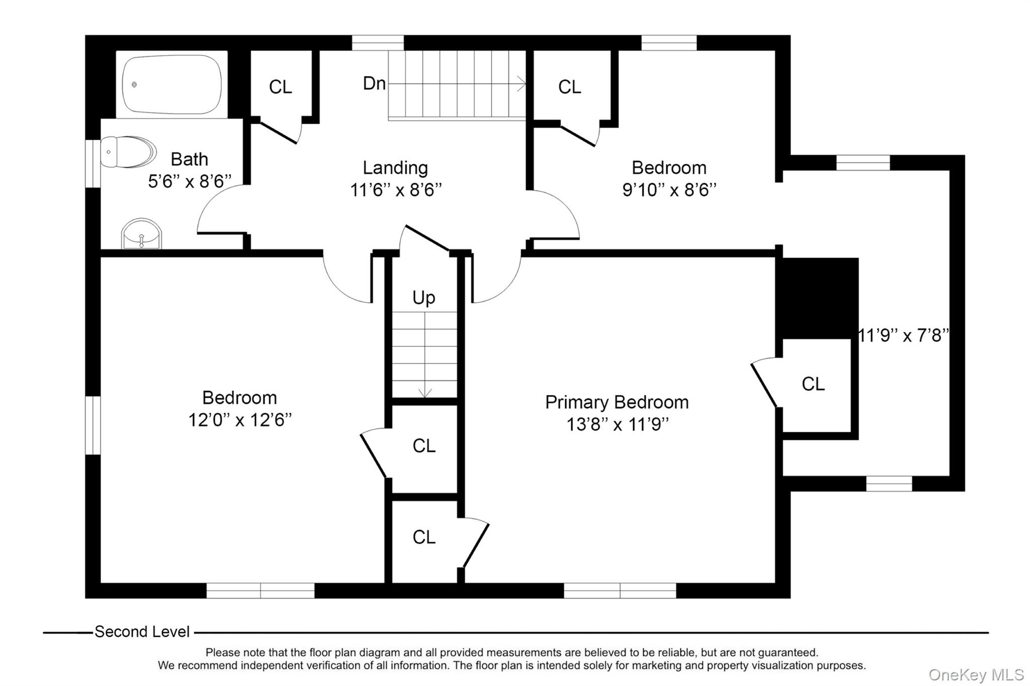
在佩勒姆莊靜謐的街區中,這個舒適的出租屋可以成為你2026年的家!走進一個溫馨的客廳,裡面有一個木燃爐壁爐、化妝間、經過翻新的廚房、美麗的餐廳和陽光房,這些位於一樓。樓上有3間臥室(其中一間是兩室套房)和一間完整的浴室。一個大型的儲藏閣可以存放你所有的物品。完整的地下室配有洗衣機和烘乾機以及額外的儲物空間。一個巨大的後院、一個一車車庫,並且距離擁有精彩遊樂場和運動場的普羅斯佩克山小學只有幾步之遙。作為佩勒姆莊的居民,你還擁有全年使用長島海灣巨大沙灘公園的地權。房子將於3月1日可用。是的,寵物是歡迎的。租戶需自付水電費。請提前幾小時通知以便安排看房,以便目前的租戶(他們將在二月的第三週搬走)可以為看房騰出空間。
In the middle of quiet block in Pelham Manor, this comfy rental home can be YOUR home in 2026! Step into a welcoming living room with a wood burning fireplace, powder room, renovated kitchen, pretty dining room and sunroom on the first floor. Upstairs there are 3 bedrooms (one is 2 room suite) and a full bath. A large storage attic will hold all your stuff. Full basement with a washer and dryer and additional storage. A huge back yard, one car garage and just steps from the Prospect Hill elementary school with its fabulous playground and playing field. As a resident of Pelham Manor you also have year round deeded rights to use the enormous Shore Park on the Long Island Sound. House is available March 1st. Yes pets are welcome. Tenant pays own utilities. Please allow a few hours notice for showings so the current tenants (who are moving the third week of February) can vacate for showings. © 2025 OneKey™ MLS, LLC






