| ID # | RLS20063565 |
| 房資料 | 5房, 2浴, 半浴, 洗衣機, 烘乾機, 建築有2公寓, 建築有3層樓 上市時間: 90天 |
| 建造年份 | 1901年 |
| 地稅 | $5千3 ($5,364) |
| 公共汽車 | 4 分鐘到 B8 |
| 6 分鐘到 B67, B69 | |
| 8 分鐘到 B68 | |
| 10 分鐘到 B103, B11, BM1, BM2, BM3, BM4 | |
| 地鐵站 | 3 分鐘到 F |
| 火車站 | 3.3 英里到 Nostrand Avenue 火車站 |
| 3.3 英里到 Atlantic Terminal 火車站 | |
![]() |
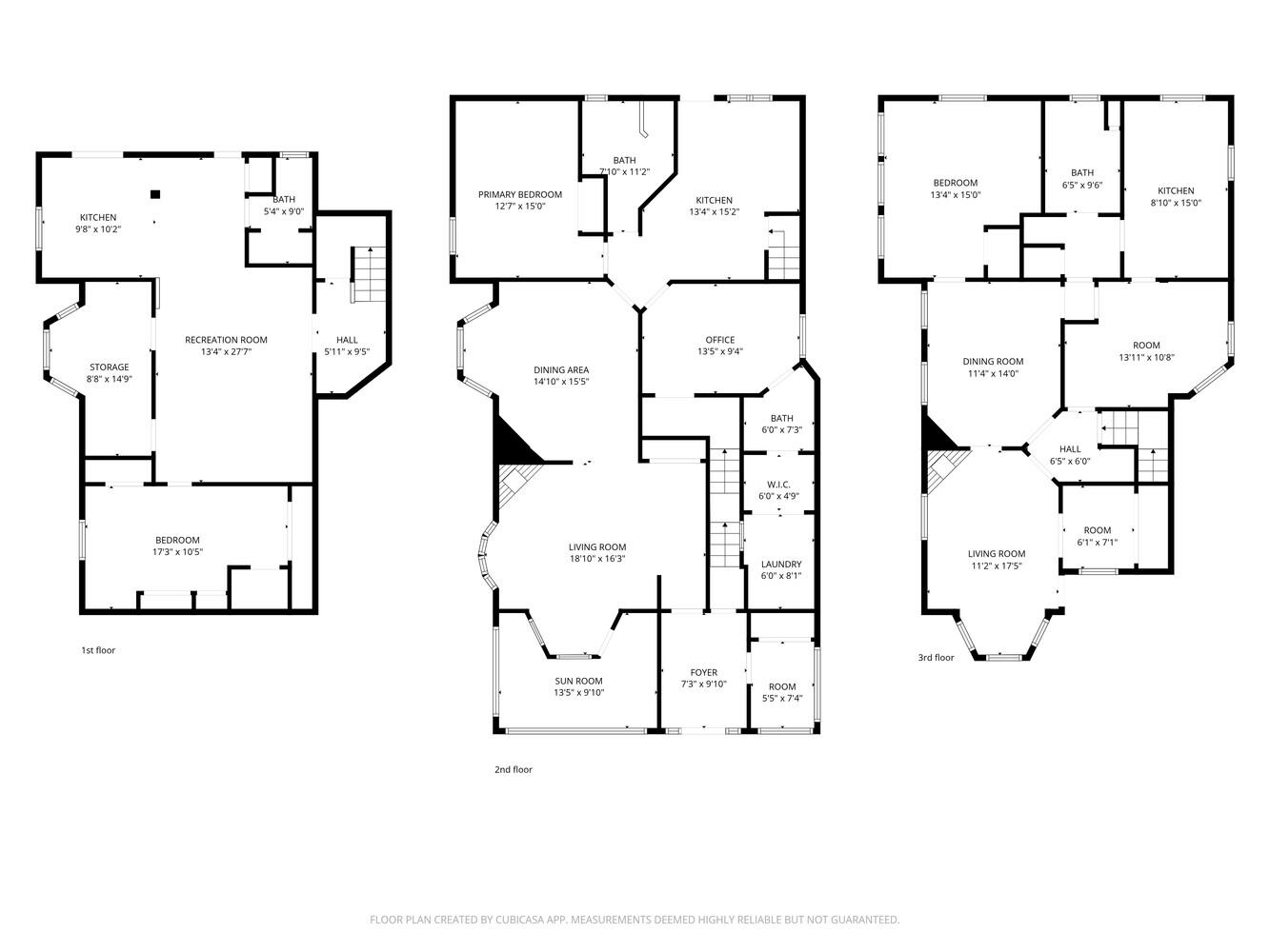
踏入一個難得的機會,擁有一個宏偉重新設計的雙家庭住宅,位於肯辛頓心臟地帶,佔地58x100英尺。此住宅經過巧妙改造,從原始的單家庭設計轉變而來,同時保留了歷史魅力。這個家是手工藝、個性和舒適的慶典,並結合了現代化的增強設施,以適應當今的生活方式。
室內你會發現遍佈的原始錫天花板,流暢的原始硬木地板從房間延伸到房間散發著永恆的溫暖,一個壁爐瞬間成為客廳的核心。經典的建築細節驕傲地保留,與精心設計的升級無縫融合,包括銅管道、新屋頂、帶島台的更新廚房和浴室。所有大宗項目均已更新。此住宅還擁有一個未完工的附加閣樓。
當你走出門外,發現一個巨大的類莊園的庭院,這是一個真正的戶外避風港,設計時考慮了放鬆和聚會的需求。戶外空間擁有迷人的涼亭、令人印象深刻的定制戶外廚房,以及時尚的甲板,為放鬆和娛樂提供了完美的環境。
無論你是想賺取收入,接待大家庭,還是創建一個私人避退,這個靈活的佈局輕鬆適應你所有的需求。這絕對是值得一看的房產。
Step into a rare opportunity to own a magnificently reimagined two-family residence situated on a 58x100 lot in the heart of Kensington. Expertly converted from its original single-family design while preserving its historic charm. This home is a celebration of craftsmanship, character, and comfort- all elevated with modern enhancements for today's lifestyle.
Inside you'll find original tin ceilings throughout, original hardwood floors that flow from room to room with timeless warmth, a fireplace that instantly becomes the heart of the living room. Classic architectural details proudly remain, seamlessly blended with thoughtful upgrades including copper piping, newer roof, updated kitchen with an island & bath. All the big-ticket items have been updated. Home also features a bonus unfinished attic.
As you step outside and discover a massive estate-like yard, a true outdoor sanctuary that was designed with relaxation and gatherings in mind. Outdoor space has a charming gazebo, impressive custom outdoor kitchen, and stylish deck that create the perfect setting for relaxing and entertaining.
Whether you're looking to generate income, host extended family, or create a private retreat, this flexible layout adapts gracefully to all your needs. Truely a must see.
This information is not verified for authenticity or accuracy and is not guaranteed and may not reflect all real estate activity in the market. © 2026 The Real Estate Board of New York, Inc., All rights reserved.







