波恩蘭姆小丘 Boerum Hill

住宅出租 RENTAL

地址: ‎99 WYCKOFF Street #2R

郵編: 11201

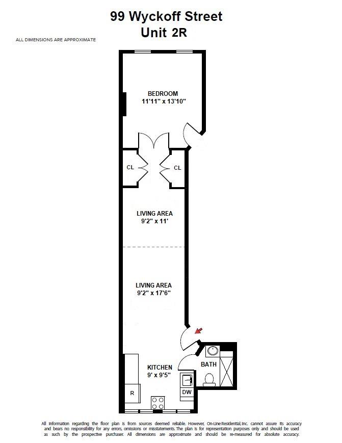
一房一廳一廚一浴, 850ft2

距離八大道中心4英里

分享到

已租
$3千4
RENTED

SOLD

中文 - 繁體 Chinese


已租 $3千4 RENTED - 99 WYCKOFF Street #2R, 波恩蘭姆小丘 Boerum Hill , NY 11201 | SOLD

房資料
Details
一房一廳一廚一浴, 洗碗機, 850 ft2 室內尺, 室內79m2平方米, 建築有10公寓, 建築有4層樓
建造年份
Construction Year
1880年
公共汽車
Bus
1 分鐘到 B57, B65
4 分鐘到 B61, B63
6 分鐘到 B62
7 分鐘到 B103, B41, B45, B67
8 分鐘到 B25, B26, B38, B52
地鐵站
Subway
1 分鐘到 F, G
6 分鐘到 A, C
8 分鐘到 2, 3
9 分鐘到 4, 5
10 分鐘到 R
火車站
LIRR
0.8 英里到
Atlantic Terminal 火車站
2.2 英里到
Nostrand Avenue 火車站

Are you the listing agent? Sign up to add your name/photo/cell to your flyers. helpdesk@Samaki.com

房屋英文概況 English Description

ALL INQUIRIES VIA WEBSITE OR EMAIL ONLY, PLEASE

Immediate lease start - 18-month lease term.

Bright and spacious half floor one bedroom loft in the prime Boerum Hill on a beautiful tree-lined brownstone block.

Apartment was recently updated and has a very flexible layout which allows tenant to configure and appoint this home to their individual needs and preferences.

King size bedroom, and spacious living area with two large double door closets will allow enough space for living room set-up, home office and a dining area. Large windowed kitchen with granite countertops, and full size stainless steel appliances, including a dishwasher.

Tile bathroom comes appointed with a shower.

Other apartment features include beautiful hardwood floors, exposed brick wall, and high ceilings with recessed lights and ceiling fans.

This is a boutique walk-up building with only 2 units per floor. This apartment is on the 2nd floor - just one flight up. Heat and hot water included in the rent. One small, quiet and well-behaved pet might be considered, restrictions apply. No smoking on-site.

No laundry on premises but there are several laundromats and dry-cleaners within 2-3 block radius.

Tenant pays full broker fee.

This information is not verified for authenticity or accuracy and is not guaranteed and may not reflect all real estate activity in the market. ©2025 The Real Estate Board of New York, Inc., All rights reserved.

Courtesy of Douglas Elliman Real Estate

公司: ‍212-891-7000

周边物业 Other properties in this area




分享 Share

已租 $3千4
RENTED

住宅出租 RENTAL
SOLD
‎99 WYCKOFF Street
Brooklyn, NY 11201
一房一廳一廚一浴, 850ft2


賣家經紀人

Listing Agent(s):‎
你是賣家經紀人嗎?請註冊以添加你姓名和手機號碼
Are you the listing agent?
Sign up to add your name and cell #‎

公司: ‍212-891-7000

请说您在SAMAKI.COM看此广告

请也给我 SOLD