曼哈頓 中城东区 Midtown East, New York

房子 HOUSE

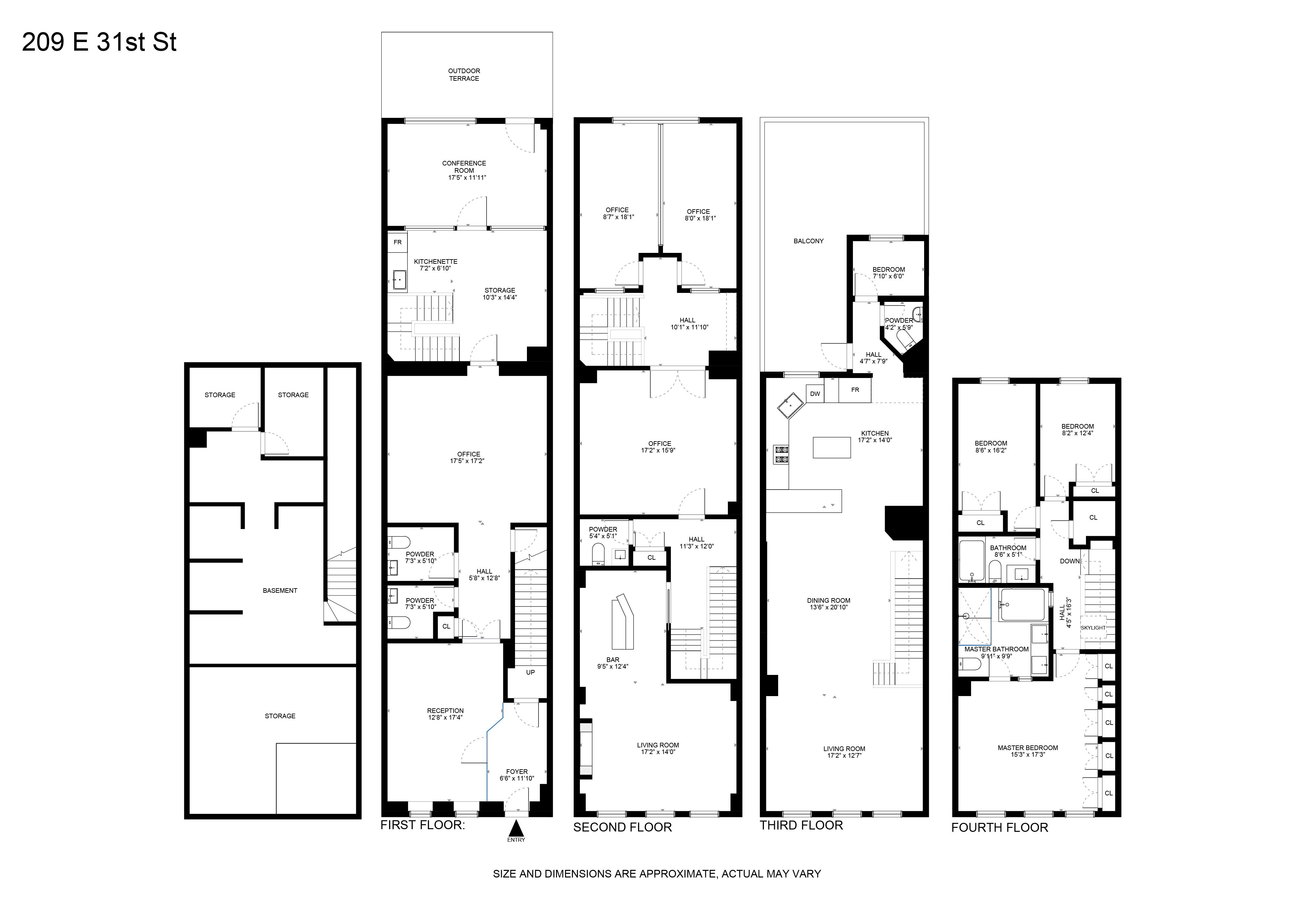
地址: ‎209 East 31st Street

郵編: 10016

3房, 6浴, 6336ft2

分享到

售$895萬

ID # 2187048

中文 - 繁體 Chinese

賣家地產公司 Broker Contact

Are you the listing agent? Sign up to add your name and cell #

你是賣家經紀人嗎?請註冊以添加你姓名和手機號碼
Nest Seekers International 公司: ‍212-252-8772

售$895萬 - 209 East 31st Street, 曼哈頓 中城东区 Midtown East , New York 10016 | ID # 2187048

ID #‎ 2187048
房資料
Details
3房, 6浴, 洗碗機, 允許寵物, 6336 ft2 室內尺, 室內589m2平方米
建造年份
Construction Year
1901年

Are you the listing agent? Sign up to add your name/photo/cell to your flyers. helpdesk@Samaki.com

房屋英文概況 English Description

Sale leaseback, turnkey, 1031 exchange opportunity. Fully Occupied (will be delivered vacant if buyer prefers). Large Kip's Bay townhouse, mixed use - two unit, ~6336 square feet, 18.75 x 98.75 lot, built in 1901, zoned R7B, commercial and residential located nearby NYU Langone Medical Center. Gross rent $450,000 , NNN = 5.013 Cap Rate. Unit #1 is a three-level triplex occupied by a financial services tenant paying $300,000 per annum with a corporate guarantee for 5 years + 5 year option. Unit #1 set up: Basement used for storage and building mechanicals. Garden Level includes entrance room, office, kitchen, conference room, 2 half bathrooms + back yard. Parlor Level includes 'Havana Room' -with coffered ceilings, onyx bar, drop-down theater screen & projection system, office, bullpen and 1/2 bath. Unit #2 set up: Top two floor duplex with the tenant/seller paying $150,000 per year + real estate taxes for 5 years. Seller is willing to vacate should the buyer prefer. 3rd Floor - includes living & dining room, kitchen, office, 1/2 bath + terrace. Top floor includes 3 bedrooms, and two bathrooms.

Courtesy of Nest Seekers International

公司: ‍212-252-8772

周边物业 Other properties in this area




分享 Share

售$895萬

房子 HOUSE
ID # 2187048
‎209 East 31st Street
New York, New York 10016
3房, 6浴, 6336ft2


賣家經紀人

Listing Agent(s):‎
你是賣家經紀人嗎?請註冊以添加你姓名和手機號碼
Are you the listing agent? Sign up to add your name and cell #‎

公司: ‍212-252-8772

请说您在SAMAKI.COM看此广告

请也给我ID # 2187048